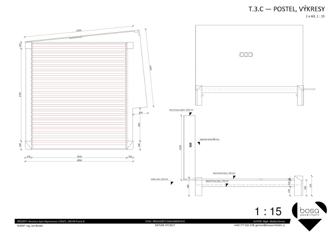
Prováděcí dokumentace pro nábytek a další vybavení bytu v Rajmonově ulici. Realizováno pouze z části.