MÍSTO: KLECANY — PRAHA ZÁPAD
ROK: 2021
FÁZE: STUDIE
KLIENT: SOUKROMÝ
ZASTAVĚNÁ PLOCHA: 90 m2
OBESTAVĚNÝ OBJEM: 550 m3
INVESTIČNÍ NÁKLADY: 3.5 mil. Kč








Autorská zpráva
POPIS ZÁMĚRU
Stavební záměr spočívá v rekonstrukci objektu p. č. 162/2 k. ú. Klecany a přestavba stávajícího podkroví na obytné patro s rovnou střechou s terasou. Atika střechy bude o 500 mm výše, než hřeben stávající střechy. Dle názoru žadatele je tato hmotová úprava v souladu s okolní zástavbou, což je doloženo na výkresu soutisk výšek s okolím. Touto úpravou vzniknou v objektu dvě samostatné bytové jednotky. V objektu budou upraveny vnitřní dispozice, včetně elektrorozvodů a rozvodů vody a odpadů. Vyměněna okna a provedeno zateplení fasády. Komínová tělesa budou postavena znova.
PROVOZ
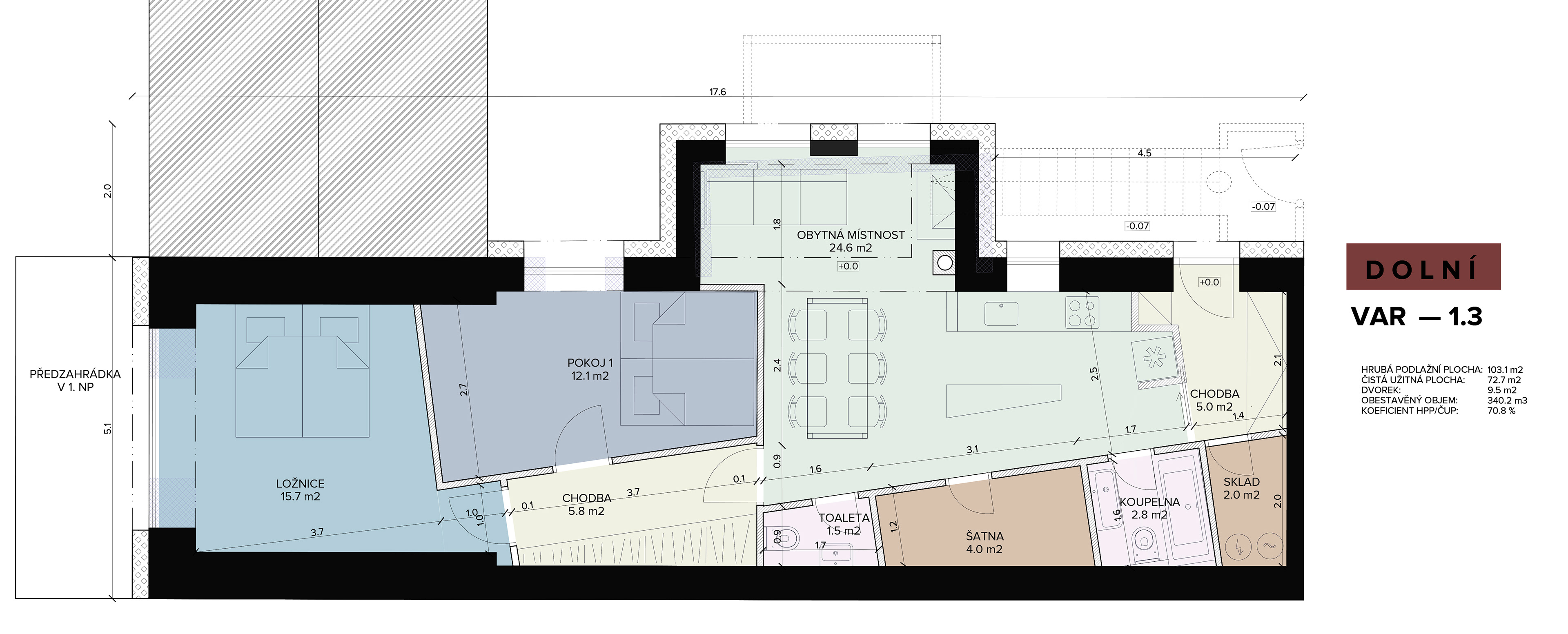
Po úpravě vzniknou v objektu dvě bytové jednotky o čisté užitné ploše 72.7 m2 (1. NP) a 79.0 m2 (2. NP). Díky terénnímu spádu má každá z bytových jednotek svůj samostatný vstup přímo z terénu. Parkování dvou osobních automobilů je řešeno na pozemku objektu, kde je sjezd po stávající šikmé rampě.
KONSTRUKČNÍ ŘEŠENÍ
Nad 1. NP bude nově zhotoven ŽB věnec a strop a nastavena cihlová zeď z keramického zdiva tl. 240 mm. Stropní deska nad 2. Np bude provedena za železobetonu. Na dvou třetinách střechy bude pochozí terasa přístupná po venkovním schodišti, jehož pata je na podestě u hlavního vstupu. Zbytek terasy bude pokryt extenzivní zelenou střechou. Objekt bude nově zateplen vrstvou polystyrenu o síle 200 mm. Plochá střecha bude zateplena
minerální vatou o síle 220 mm. Budou vyměněna okna za okna s dvojsklem.
minerální vatou o síle 220 mm. Budou vyměněna okna za okna s dvojsklem.
MATERIÁLOVÉ ŘEŠENÍ FASÁD
Horní patro — nástavba — bude mít provětrávanou fasádu s dřevěnými latěmi a nebo plechovým zakrytím. Spodní — původní patro bude od horní nástavby vizuálně odděleno. Zde bude využito buďto obkladu, nebo kontaktní omítky, toto bude upřesněno v dalších fázích projektu.



